Welcome to the Academy
We are proud to be able to offer appropriate access to all parts of the main building and the York Gate Building.
Our main building is accessible from Marylebone Road via a small slip road and drop-off point for visitors coming by taxi or car. Step-free access to our main building is via the ramp at the main entrance; and to our York Gate building via the ramp alongside the building.
Step-free access around our main building
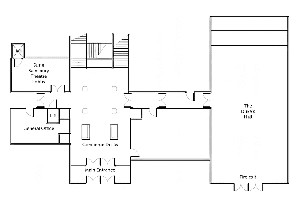
After entering the main building using the main entrance ramp, the Box Office is on your left and the Patron’s Room on your right. There are then two reception desks, where our friendly staff will welcome you and provide assistance.
To enter the Duke’s Hall, turn right past the right reception desk and proceed through two sets of double doors.

To enter the other performance halls (except for the David Josefowitz Recital Hall; see below for further information), you will need to use the lift located in the Susie Sainsbury Theatre lobby. The lobby is to the left of the left reception desk.
To gain access to the Concert Room, take the lift to the basement level. On exiting the lift, go to the end of the corridor and turn left. Then go down the corridor, past room LG48, and turn right through the double doors into the Concert Room.

For the Susie Sainsbury Theatre stalls, please take the lift to the first floor. Exit the lift and turn left onto the landing. Go straight ahead towards the large door to the stalls. To get to the Dress Circle, take the lift to the second floor. Exit the lift and turn left through the door to the Dress Circle.
To access the Angela Burgess Recital Hall, take the lift to the third floor. Exit the lift and bear left towards the double doors of the recital hall.
To reach the David Josefowitz Recital Hall (DJRH), you will need to use the main building lift and select the basement level. This lift has two sets of doors: the inner door is automatic and the outer door is manual. Please feel free to ask for help with the manual outer door. On exiting the lift, turn left and go to the end of the corridor. You will pass the accessible toilet on your right. At the end of the corridor, go through the first glass doors and then turn right immediately to go through another glass door, which will bring you to the recital hall. The DJRH can also be accessed from the York Gate building (see ‘Step-free access around our York Gate building’, below).

To get to the Sound Bites Cafe and the Academy Bar, you will need to use the main building lift and select the basement level. This lift has two sets of doors: the inner door is automatic and the outer door is manual. Please feel free to ask for help with the manual outer door. On exiting the lift, turn right and you will see the Sound Bites Café. If you continue down the corridor you will come to the Academy Bar.
Leaving the main building
To leave the main building, return to the main entrance reception and use the ramped exit at the front of the building.
In the event of an emergency evacuation of the building, there are trained staff who will take appropriate action to ensure that people are safely evacuated from the building. Evacuation ‘evac’ chairs are available in both buildings to enable marshals to assist people down the stairs, if required.
Step-free access around our York Gate Building
The ramp is to your right as you look at the main entrance to the York Gate Building, near to the barrel-vaulted roof of the David Josefowitz Recital Hall.
After entering York Gate Building via the ramped side entrance, go through the doorway facing you marked ‘Museum’. You are on the ground floor. The lift is on your left as you come through this door.
On the first floor you will find the Strings Gallery. Turn left as you leave the lift. Turn right for the accessible toilet.
On the second floor you will find the Piano Gallery. Turn left as you leave the lift. Turn right for the accessible toilet.
There is no public access to the third floor.
To get to the David Josefowitz Recital Hall, take the lift to the basement level. Bear right on leaving the lift, then turn right to reach the Stannah platform lift. The lift is activated by pressing and continuously holding down the arrow button. The David Josefowitz Recital Hall is facing you to the left at the lower level. On leaving the platform lift, go through the glass door facing you and through the lounge area. Once through the second glass door, bear left. There is a single glass door which takes you to the David Josefowitz Hall.
The double glass doors take you into the basement of the main building. Once in the corridor, you can access Sound Bites Cafe and the Academy Bar, as well as the main Academy lift to the other levels.
For the basement practice rooms in York Gate, turn left as you leave the lift.
Leaving the York Gate building
To leave the building, return to the ramped exit and use the intercom system to contact the staff on main reception, who will release the door latch, enabling you to open the door easily. Should you require assistance, there is a phone by each lift: call 370 for Security (or call 020 7873 7370 directly from your mobile phone).
In the event of an emergency evacuation of the building, trained fire marshals will take appropriate action to ensure that people are evacuated safely from the building. Emergency Refuge areas are provided in the York Gate building. An evacuation ‘evac’ chair is available to enable marshals to assist people down the stairs, if required.